KOKORO MOONEN YACHTS
If you have any questions about the KOKORO information page below please contact us.
Luxury yacht KOKORO (ex HULL YN199) from Dutch shipyard Moonen Yachts is the second hull in the Martinique series with a launch date in spring 2020. She features the naval architecture of Diana Yacht Design in collaboration with René van der Velden, who also produced her exterior styling. Studio Indigo will work with her buyer to create customised interiors.
The accommodation sleeps 12 guests and a crew of seven to ensure efficient operations throughout every cruise.
NOTABLE FEATURES OF KOKORO: ~High quality customised interiors ~Numerous indoor/outdoor lounges and dining areas ~Sundeck wet bar ~Large guest cabins ~Excellent range of 4,000 nautical miles ~Air conditioning ~Wi-Fi
EXTERIOR
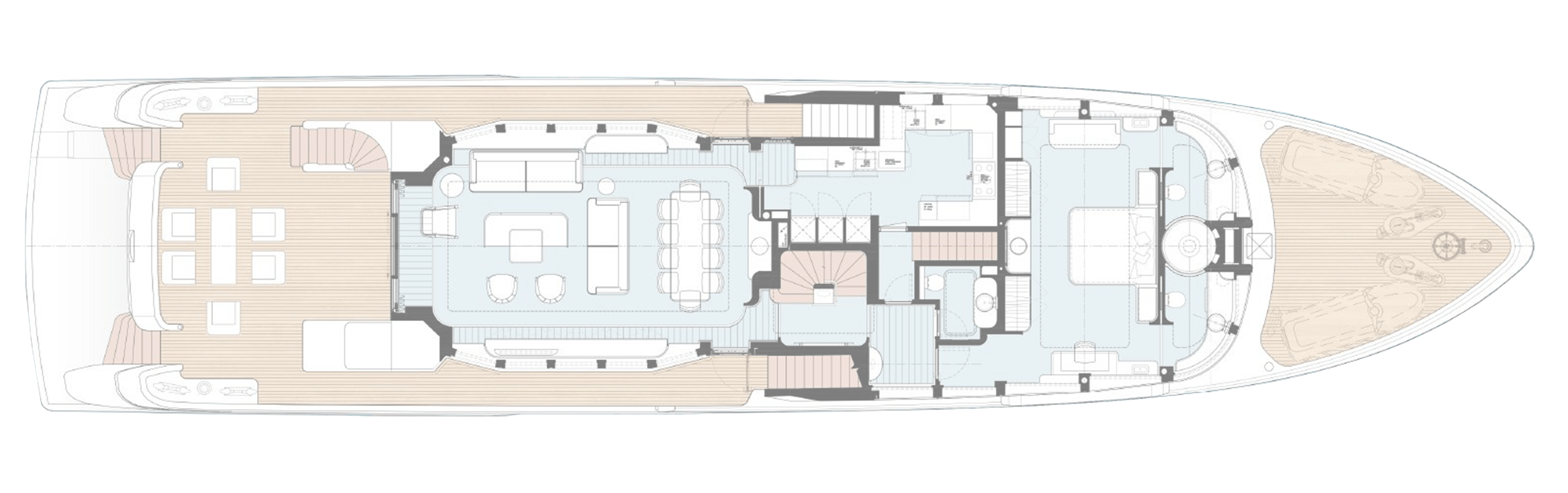
The main deck aft places loose furniture around a central coffee table for a casual conversation and dining environment. After lunch, visitors can head down the stairs to the swim platform and take the tender to the shore.
A staircase leads to the upper deck, where a grand alfresco dining table is placed beneath the shade of the sundeck overhang, and sun loungers are placed along the aft. In front of the helm station, the foredeck has a C-shaped sofa and two drinks tables where guests have uninterrupted views of the surroundings.
The sundeck features a wet bar to port beneath the shaded hardtop, and sofa curving around three sides of a large raised table to starboard. The sun-exposed aft is furnished with sun loungers where guests can rest after a hearty meal.
INTERIOR
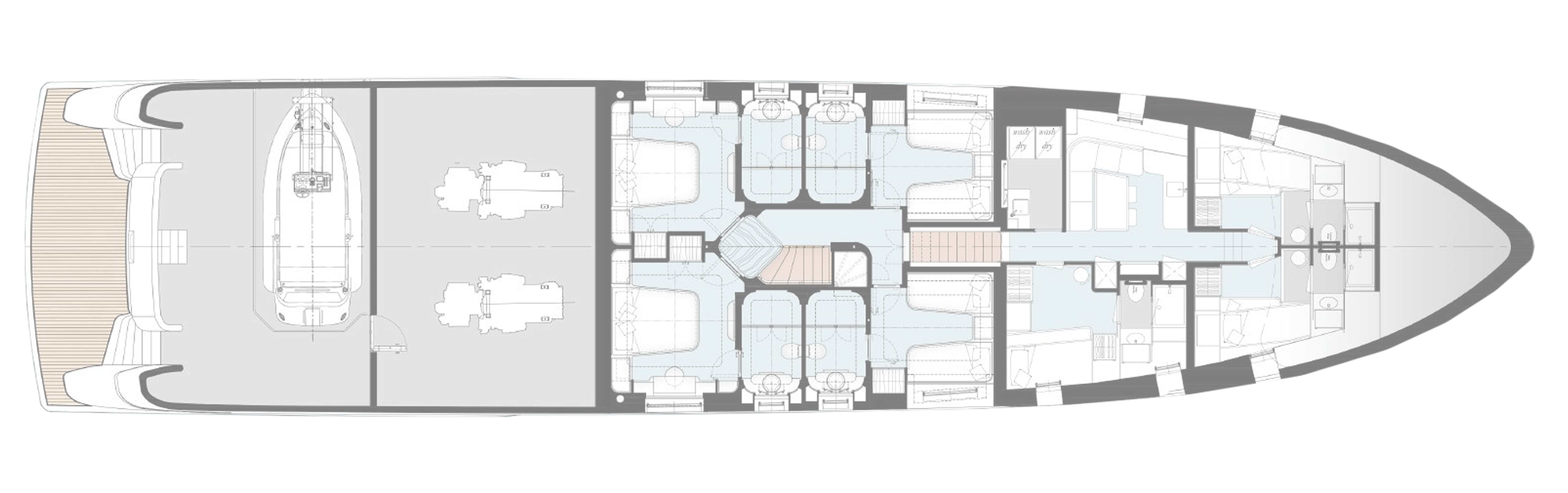
The lower deck hosts the crew accommodation forward and includes a crew mess. The guest accommodation is located amidships with the engine room behind, and the tender garage with storage for water toys in the stern.
A central staircase leads up to the main deck, there the forward interior hosts the full-beam Master suite with separate bathroom and private Jacuzzi tub. The galley is placed to port of the main foyer and an aft corridor leads through to the formal dining area, which shares the same open-plan room as the main salon placed to the aft. While up to 12 guests enjoy a meal at the formal dining table, windows span the length of the room for a naturally lit environment with spectacular views.
The salon behind places one sofa facing aft and another against the port wall to create a divide between the meal and entertainment spaces. A large coffee table is placed in the centre and additional armchairs complete the setting.
KOKORO Specifications
| Type/Year: | MOONEN YACHTS/2020 |
|---|---|
| Refit: | |
| Beam: | 8.00m (26'2'') |
| L.O.A.: | 36.30m (119') |
| Crew: | 7 |
| Guests: | 12 |
|---|---|
| Max Speed: | 16.5 knots |
| Cabins: | 6 |
| Engines: | 2 x Caterpillar C32 acert |
| Cruise Speed: | 14 knots |
| More Yacht Info: | family friendly yachts, Yachts With On Deck Master Cabin |
|---|---|
| Builder/Designer: | Studio Indigo Ltd, Rene Van Der Velden, Moonen Yachts, Moonen, Diana Yacht Design |
| Locations: | EUROPE |
On the upper deck the helm station is placed forward with the Captain's cabin behind. The skylounge is placed to the aft and uses a similar layout to the main salon with the addition of a starboard wet bar.
The twin Caterpillar C32 acert engines produce a maximum speed of 16.5 knots, a cruising speed of 14 knots and an ocean-going range of 4,000 nautical miles at an economical 10 knots.
Yacht Accommodation
The accommodation layout provides for up to 12 guests, with a crew of 7 for efficient and professional service.
Amenities and Extras
We do have available further amenity, owner and price information for the 36.30m (119') yacht KOKORO, so please enquire for more information.
KOKORO Disclaimer:
The luxury yacht KOKORO displayed on this page is merely informational and she is not necessarily available for yacht charter or for sale, nor is she represented or marketed in anyway by CharterWorld. This web page and the superyacht information contained herein is not contractual. All yacht specifications and informations are displayed in good faith but CharterWorld does not warrant or assume any legal liability or responsibility for the current accuracy, completeness, validity, or usefulness of any superyacht information and/or images displayed. All boat information is subject to change without prior notice and may not be current.
Quick Enquiry
"Integrity forms the foundation of everything we achieve at Moonen, where keeping promises is a way of life. To ensure words are translated into action, we are dedicated to high efficiency, genuine teamwork (both within the yard and with our suppliers and clients) and careful planning. Throughout the yachtbuilding process, we also leverage on our rich experience." - Moonen Yachts







































